Sergeant's Cottage

Our client was drawn to this place as much for his memories of the man who once lived there as he was for its majestic south Wellington coastal views. Although he had never met the previous occupant, Hank, his memories of his grandparents' relationships with him provided a powerful attraction.

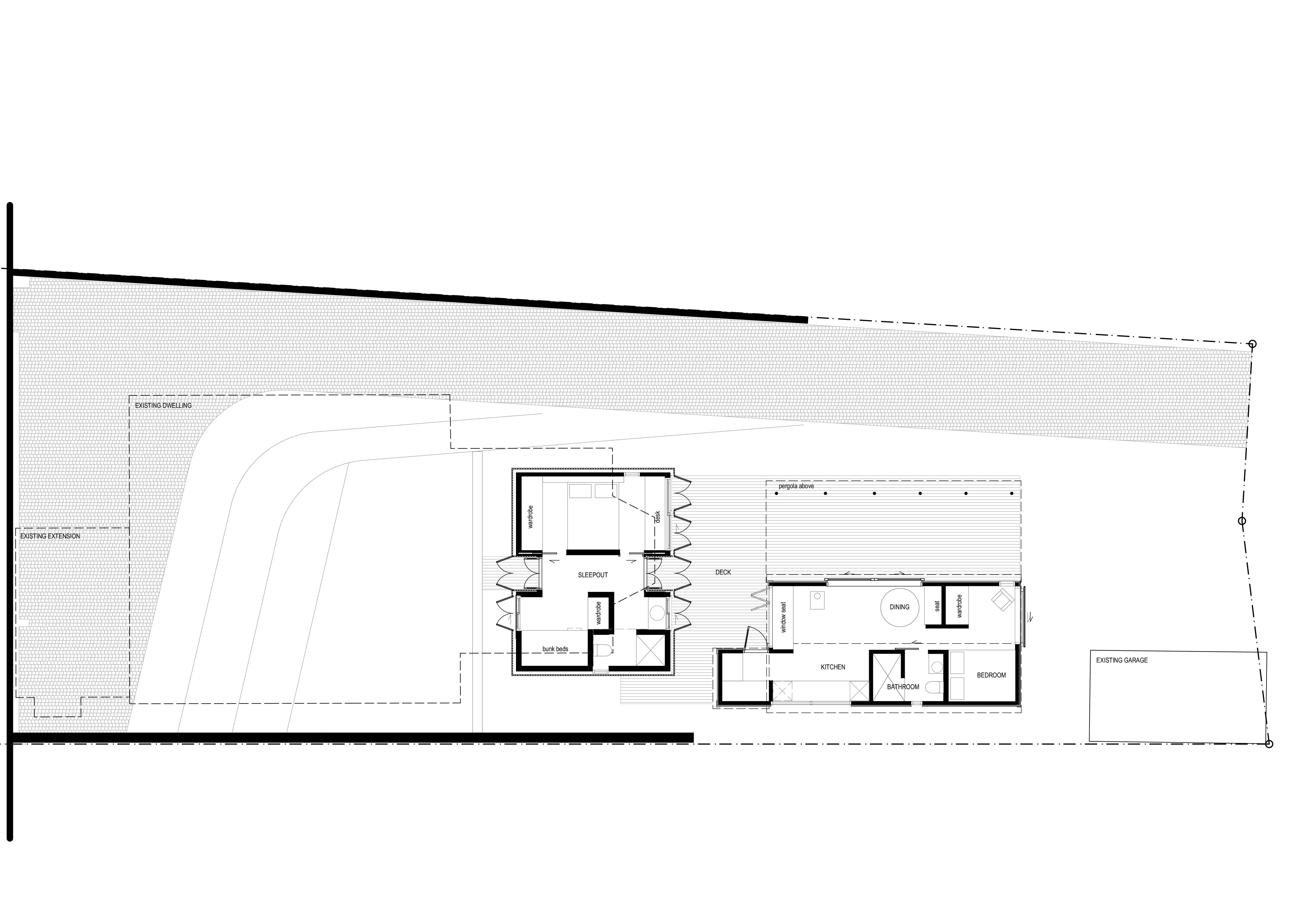
The site was originally dissected by a poorly positioned bungalow divorced from its context. At the front, on the lowest portion of the site, was the small Sergeant's Cottage, which had been trucked in years ago from the nearby Worser Bay barracks. An original concrete garage completed the existing collection of buildings.

A new, larger dwelling was designed for the steepest part of the site at the rear, where terraced gardens provide a legacy of Hank's years living there. While at the front, it was decided to keep and renovate the Sergeant's Cottage and add a small sleepout to provide a 66m2 dwelling that would allow our client and his children to more immediately embed themselves in their seaside community.

The existing bungalow was carefully deconstructed, providing beautiful rimu sarking that was milled and reused to line the interior of the sleepout. The cottage retained its original footprint and basic organisation. The renovation introduced generous openings with double-glazed timber joinery, insulation and a lighter interior palette, all while respecting the simplicity of the original building. A new covered deck was the major intervention, expanding the cottage's modest size and framing views of the beach across the road.

The sleepout is a carefully proportioned companion to the cottage that offers flexibility as a work space, studio or guest accommodation. The original garage has been refurbished with new bright yellow timber doors.

One original detail remains unaltered: the front gate. As our client says: 'We kept it because both of my grandfathers had their hands on it. They passed through that gate, years apart and for different reasons. It’s a small thing — weathered, a little crooked — but it’s the one part of the place I didn’t want to change.'

2025 HERE Awards Best House Aotearoa
+ Winner Reuse and Renovation